本篇對200m2戶型的軟裝方案解析。
軟裝設計是對于硬裝的修飾,加上色彩和質感的搭配,
所以營造意境氛圍當中很大一部分都是由軟裝設計來決定的。
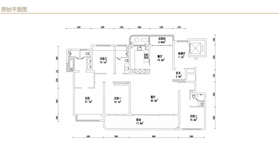
戶型分析
戶型為四室兩廳三衛一廚
交付時 門廳
有收納柜,但是深度較窄,后期是可以在玄關做一些補充性的收納柜,比方說鞋或者是換季的鞋子、外套、包包、圍巾之類的,我們通過內部的一些細化去做整體的布置。
客餐廳以及陽臺是一個將南北連在一起的空間,整個空間還是相對比較方正的,活動區也是比較寬闊,在這個空間里邊舒適度來講也是還不錯的。
因為餐廳空間不是特別大,但是比例適中,采光和通風很好,需要適當增加收納,彌補廚房空間的不足。
客廳整個功能上面沒有什么太多的問題,主要是硬裝交付的時候,是有一個背景的,對于我們后期的軟裝搭配相對來講是有局限性的,如果說我們想要有一些其他的風格元素在里邊,那整體后期是要做一些調整的。
主臥、次臥以及北邊的多功能房和書房,整個來講采光和通風是還是不錯的,但是比方說南邊的臥室,相對來講空間上面是比較的局促的,如果我們后期再選擇家具產品,可能是要嚴格去把控尺寸。
書房和衣帽間 是考慮到對于整個居家來規劃,精裝房一般情況下收納是不太充足的,需要做一些補充的收納,后期是可以作為一個書柜的收納,或者是作為衣物的收納,學習區、書桌區也是考慮到如果我們平時需要閱讀或者是有偶爾辦公的情況來使用。
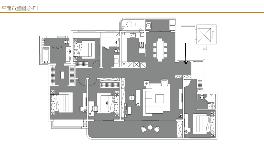
風格定位和平面方案
現代風格 設計追求的是空間的實用性和靈活性。居室空間是根據相互間的功能關系組合而成的,而且功能空間相互滲透,空間的利用率達到***高。
空間組織不再是以房間組合為主,空間的劃分也不再局限于硬質墻體,而是更注重會客、餐飲、學習、睡眠等功能空間的邏輯關系。
通過家具、吊頂、地面材料、陳列品甚至光線的變化來表達不同功能空間的劃分,而且這種劃分又隨著不同的時間段表現出靈活性、兼容性和流動性。
對于整體空間,一定要有主次之分(如上圖),整個空間一定以客餐廳和主臥作為整體空間的 主要空間,使用頻率相對更高,家具更強調品質和美觀,同時具備舒適性,便于打理。
次臥以及書房屬于次要空間,需要更注重性價比與裝飾性。
我們現在看到這張圖,是
軟裝產品數量分析圖,軟裝區別于硬裝的是,軟裝是需要有產品落地的,我們能看出來,家具大致需要39件,木作大致6處,窗簾大致需要6處,地毯大概需要4塊,燈具大致在11件。
***種方案
將 客廳 以沙發為間隔,增加休閑吧臺。可以當小餐桌,喝酒聊天,或者做為小工作區,看書辦公。不僅美觀還實用!
主臥
作為套房,將睡眠空間+衣帽收納空間+洗漱空間為一體,床尾有需要的話,可以增加抽屜柜收納跟梳妝臺,兩個南次臥獨立的大衣柜能夠滿足客房的日常衣物收納。北次臥
設立成獨立式的書房供學習和辦公使用,這樣就算男女主人都需要在家辦公,也能互不打擾,非常的安靜。
第二種方案
這個方案比較適合多人口家庭剛需使用,客廳作休閑+會客為一體,增加家人之間的溝通和交流,北次臥當做客房來使用,每個房間都設立衣柜,增加各個空間的收納。
軟裝意向分析
· 玄關 ·
玄關 以木飾面為視覺主導,集收納、換鞋于一體的門廳柜,底部懸空留出放鞋位置,承載了功能與裝飾兩大特性,讓入戶的功能需求與極簡美感同時得到滿足。
· 客廳 ·




客廳整體格調沉穩,做滿墻電視柜的設計,美觀與實用兼備。L型沙發搭配異形沙發的布置,令空間多了些跳躍感。
客廳還設有小吧臺,凸顯小資情調,坐在這兒和家人朋友小酌一杯,一定非常愜意自在。或者可以當成休閑區,放上男女主人喜歡的鋼琴,畫面也非常的美好。
· 餐廳 ·



再忙也要好好吃飯,好好吃飯的前提是擁有一張舒適又耐看的餐桌,可以讓一家人圍坐其邊,享受味蕾與精神的雙重慰藉。
餐廳 挑選餐桌時***先需要考慮的要素是材質。餐桌的材質需要貼合廚房的風格,幫助你塑造理想中的用餐氛圍。
· 主臥 ·


主臥室 的區域由幾大功能區組成,一面墻體將寢區、更衣室區分開,墻體是用咖色材質進行隔斷,柔軟的材質充分體現著臥室空間的舒適屬性。


衣帽間 的衣帽收納,首先應該結合業主的工作生活習慣,同時根據身高做個性化的定制設計,區分開長短衣物、包包、帽子、皮帶等區域日常收納的習慣。
· 次臥 Ⅰ


其中一間 南次臥 當做兒童房使用,床頭作硬包,整體軟裝可以以顏色來區分小主人的性別或者以長遠來看,可以用中性色為基調,以簡約和性價比來裝飾整個空間,房間的采光和照明比較重要,并且單獨的學習區域需要寬敞一些,還需要增加一些書本的收納。
· 次臥 Ⅱ ·


此房間當做 長輩房 來使用,長輩們大都閱歷較深,愛好和品味與年輕人有所不同,大都追求大氣沉穩的風格,因此空間裝飾要突出主格調,各種點綴裝飾不宜過于夸張應與空間裝飾、家具造型及風格相協調,形成舒適、安逸、穩重的氛圍。
房間設計盡可能簡潔實用,不宜太過于繁雜的裝飾、不適合擺放太多家具,為老人家保留更多的活動空間才是***重要的。
· 書房 ·


北面的小房間當作獨立 書房使用,形式是多種多樣的,不同的風格有不同的設計手法以及材質的運用都是跟風格息息相關的,需要注意的是頂面跟側面,他跟墻體的一些收口的問題,材料肌理的選擇,也應該跟燈具、窗簾這些軟裝方面的東西整體統一起來去考慮。
· 洗衣房 ·


此區域為 洗衣房 ,是集機洗、手洗、晾曬和收納的區域,可以再添加一些設備,洗衣、熨燙、收納一條龍,并且設置單獨的操作臺,洗衣房不單只是洗衣的地方,也可以在這里縫補衣服,或者進行其他需要用水的活動。
· 陽臺 ·


院子雖美,但不是每個人都有條件、時間和經歷去營造和打理的。相比之下 陽臺 就比較省時省力了,其實大的陽臺一樣可以打造出美麗的空中花園。
天氣晴朗的時候,大家都喜歡出去曬曬太陽,呼吸新鮮空氣,在陽臺上擺放一張戶外沙發,在上面坐著休憩或者和朋友喝茶聊天,這是多少忙碌的都市人向往的閑逸生活。
或者也可以將陽臺改成運動休閑區域,適時的放松身心在快節奏的生活里是很有必要的。
整體方案預算估算
上圖是大概軟裝設計所包括的類目和價值占比,現在精裝房越來越多,而軟裝設計師就是是從整體上綜合策劃裝飾裝修設計方案,體現出居住者的個性品位。