今天為大家分享一些隔墻類的知識。本文我們主要講解兩種常見的輕質隔墻:輕鋼龍骨罩面板隔墻和板材隔墻。
一、材料

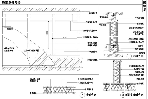
龍骨材料:
輕鋼龍骨主件有沿頂沿地龍骨、加強龍骨、豎(橫)向龍骨、橫撐龍骨。
輕鋼龍骨配件:
支撐卡、卡托、角托、連接件、固定件、護角條、壓縫條等。
天、地龍骨斷面類型:(單位:mm)
50*40、75*40、 100*40 、150*40;
豎龍骨斷面類型:
48.5*50、73.5*50、98.5*50、148.5*50;
貫通龍骨斷面類型:
38*12;
緊固材料:
射釘、膨脹螺栓、鍍鋅自攻螺絲(12mm厚石膏板用25mm長螺絲,兩層12mm厚石膏板用35mm長螺絲)、木螺絲等。
填充材料:
玻璃棉、礦棉板、巖棉板等,按設計要求選用。
二、工藝流程

工藝節點↑
彈線→做地梁(有設計要求時)→安裝天地龍骨→豎向龍骨分檔→安裝豎向龍骨→管線布置→安裝橫向卡檔龍骨→安裝門洞口框→安裝一側罩面板→安裝隔音棉→安裝另一側罩面板→驗收
三、施工工藝
1、彈線在基體上彈出水平線和豎向垂直線,以控制隔斷龍骨安裝的位置、龍骨的平直度和固定點。

地梁支模↑
2、設計有要求時,按照設計要求在地面按照彈線支模,澆筑地梁;

安裝罩面板↑
3、門窗或特殊節點處,應使用附加龍骨,加強其安裝應符合設計要求。

填充隔音材質↑
石膏板縫與對面的板縫不得布在同一根龍骨上。安裝防火、隔音等材料,與另一側石膏板同時進行填入,填充材料應鋪滿、鋪平。
第2層板的安裝方法同第1層,但必須與第1層板的板縫錯開,接縫不得布在同一根龍骨上。
4、隔斷的下端如用木踢腳板覆蓋,隔斷的罩面板下端應離地面20~30mm;如用大理石、水磨石踢腳時,罩面板下端應與踢腳板上口齊平,接縫要嚴密。
好了,以上就是輕鋼龍骨的隔墻工藝,再來回顧一下:
彈線→ 做地梁(有設計要求時)→ 安裝天地龍骨→ 豎向龍骨分檔→ 安裝豎向龍骨→ 管線布置→ 安裝橫向卡檔龍骨→ 安裝門洞口框→ 安裝一側罩面板→ 安裝隔音棉→ 安裝另一側罩面板→ 驗收
下面我們來看另一種輕質隔墻。
輕質板材隔墻

板材隔墻↑

板材隔墻↑
工藝流程:
施工放線 → 安裝固定件 → 配制膠粘劑 → 安裝隔墻板→檢查平整垂直→布線管→板縫處理→板面修補→隔墻驗收→面層處理

安裝固定件:
墻板與地面、頂面、柱及墻面的連接應用U型或L型卡件固定。在與地面、頂板、梁連接時,卡件應固定在條板的接縫處; 墻的高度每米打一個卡件;卡件應用射釘槍固定。
配制膠粘劑:
膠粘劑要隨配隨用。配制的膠粘劑應在30min內用完。

安裝隔墻板↑
檢查平整垂直:

在安裝過程中隨時用2m靠尺及塞尺測量墻面的平整度,用2m托線板檢查板的垂直度。要確保符合要求,如有不合理此階段可以適當調整。
布線管:

安裝墻體內線管、線盒以及填充材料,隔墻板安裝完畢,待粘接劑干硬后,方可在墻面上鉆孔、擴孔。
板縫處理:

隔墻板安裝后,檢查所有縫隙是否粘結良好,有無裂縫,如出現裂縫,應查明原因后進行修補。
面層處理:
***后涂面層涂料即可。如貼瓷片,無需刮灰,直接用水泥漿將瓷片貼在墻板上即可,也可以直接粘貼墻紙,木飾板等。
